ホーム  >  土地情報  >  中古住宅詳細情報|No.r007 南箕輪南原
 
  • お問い合せ・ご相談窓口
コンテンツ
  • ブログ ラックにっき
  • 私の考える建築
  • 楽ハウス
  • まずは土地探しから
  • 会社の建物メンテナンス
  • 生活創造ラボ【準備中!】
  • 求人情報
グループサイトへのリンク
  • フレッシュリフォーム
  • い〜な田舎暮らし

  • 信頼できる業者を見つけたいとお思いの方へ
    NPO日本良質住宅協会

B-0217

■南箕輪南原 【平成19年新築!値下げしました】1,980万円
中古住宅南箕輪南原
  • 所在地/南箕輪南原
  • 土地/307.93m²(93.14坪)
  • 建物/延94.1m²(28.4坪)
  • 構造/木造2階建
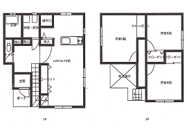
  • 間取り/3LDK
  • 価格/1,980万円
  • 権利/所有権
  • 築年数/平成19年6月新築
  • 取引形態/仲介

●ポイントと備考
トンネル開通で木曽がグーンと近くなりました!アルプスの眺望良し、通勤便利な好立地です。
南部小、南箕輪中通学区 小学校・保育園まで徒歩10分 随時見学可能です。

 

詳しい地図を見る◆   ◆南箕輪南原のこの物件を問い合わせる

●物件画像

外観
外観
周辺風景
間取り
中古住宅をリフォームしませんか?